Giżycko, Daszyńskiego
220 000,00 PLN
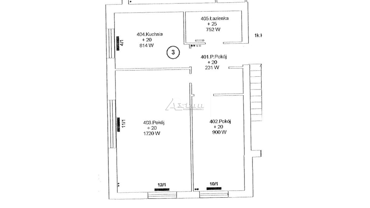
Mieszkanie na sprzedaż , 45 m2
4 888,89 PLN /m2
Powierzchnia
45 m2
Liczba pokoi
2
Rok budowy
1974

Dane nieruchomości:

Numer oferty: AX012505
Powierzchnia: 45 m2
Liczba pokoi: 2
Piętro/Pięter 4 z 4
Rok budowy: 1974
Ogrzewanie: CO miejskie
Balkon : 1
Jasna kuchnia: Tak
Cena za m2: 4 888,89 PLN
Cena: 220 000,00 PLN

Opis nieruchomości:

Mieszkanie 2 pokojowe o powierzchni 45 m2, zlokalizowane przy ulicy Daszyńskiego 
Kupujący nie płaci prowizji.
Bardzo funkcjonalny rozkład.
Mieszkanie składa się z:
- salonu
- sypialni
- oddzielnej kuchni
- łazienki z WC
- przedpokoju 
- balkon
Do mieszkania przynależy piwnica 4m2
Miejsca parkingowe przed budynkiem.
Forma własności: odrębna własność lokalu.

Ciche i spokojne osiedle, pełna infrastruktura.
W pobliżu przedszkole, szkoła, sklepy, usługi

 Zapraszam na prezentację.

Wskaźnik rocznego zapotrzebowania na energię użytkową (EU): 109.5 kWh/(m2 · rok).
Wskaźnik rocznego zapotrzebowania na energię końcową (EK): 141.6 kWh/(m2 · rok).
Wskaźnik rocznego zapotrzebowania na nieodnawialną energię pierwotną (EP): 185.5 kWh/(m2 · rok).
Jednostkowa wielkość emisji CO2 (E CO2): 0.04833 t CO2/(m2 · rok).
Udział odnawialnych źródeł energii w rocznym zapotrzebowaniu na energię końcową (U OZE): 0 %.


--Treść niniejszego ogłoszenia nie stanowi oferty handlowej w rozumieniu Kodeksu Cywilnego--

Skontaktuj się z agentem :
Mirosław Treszczyński

Telefon : 791333444

miroslaw.treszczynski@axton.pl


Lokalizacja: