Konstancin-Jeziorna,
2 700 000,00 PLN
Dom (Wolnostojący) na sprzedaż , 332,77 m2
8 113,71 PLN /m2
Powierzchnia
332,77 m2
Liczba pokoi
6
Rok budowy
1995

Dane nieruchomości:

Numer oferty: AX012532
Powierzchnia: 332,77 m2
Powierzchnia działki: 1 200 m2
Liczba pokoi: 6
Pięter : 1
Rok budowy: 1995
Ogrzewanie: gazowe
Jasna kuchnia: Tak
Cena za m2: 8 113,71 PLN
Cena: 2 700 000,00 PLN

Opis nieruchomości:

PROWIZJĘ POKRYWA WŁAŚCICIEL NIERUCHOMOŚCI
Dwukondygnacyjny dom o powierzchni użytkowej 294,94 m2 (pow. całkowita 332,77 m2), położony na pięknie zagospodarowanej działce, w okolicy domów wolno stojących, w cichym i spokojnym miejscu.
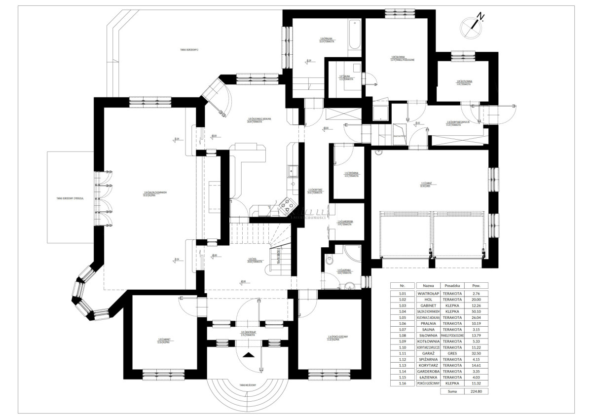
Opis pomieszczeń:
Parter:
- wiatrołap 2,76 m2
- hol 20 m2,
- gabinet 12,26 m2
- salon z kominkiem 50,10 m2
- kuchnia z jadalnią 26,04 m2
- pralnia z oknem 10,19
- pokój rekreacyjny o pow. 13.79 m2 z sauną, pow. 3,15 m2 (z piecem elektrycznym) i kabiną prysznicową 
- kotłownia 5,33 m2
- garaż na dwa samochody 32,50 m2
- spiżarnia 4,15
- korytarz 14,61 m2
- garderoba 3,35 m2
- łazienka 4,03 m2
- pokój gościnny 11,20 m2
Razem: 224,40 m2
Piętro:
- sypialnia 1 - 22,05 m2
- sypialnia 2 - 22,05 m2
- sypialnia z garderobą 35,34 m2
- łazienka 18,30 m2
- korytarz 10,63 m2
Rzazem: 108,37 m2
Wysokość pomieszczeń: 3 m.
Dom o bardzo ciekawym rozkładzie, w bardzo dobrym stanie technicznym, do odświeżenia.
Ściany zewnętrzne dwuwarstwowe z izolacją między warstwami (cegła MAX i cegła pełna).
Ściany wewnętrzne - cegła dziurawka,
Stropy Ferta.
Ozdobne wykończenia otworów okiennych i drzwiowych oraz narożniki domu - cegła klinkier,
Więźba dachowa drewniana.
Pokrycia dachu - dachówka bitumiczna.
Instalacja wodna i c.o. wykonana z rur miedzianych.
Okna: drewniane.
Garaż w bryle budynku.
Dom w bardzo dobrym stanie technicznym, do odświeżenia.
Ogrzewanie  gazowe oraz dodatkowo podłogowe elektryczne w kuchni z jadalnią i w łazience na piętrze.
Pod więźbą dachową znajdują się nieocieplane pomieszczenia służące jako schowki (strych).
Wejście do domu - schody i podest wejściowy zostały pokryte piaskowcem.
Od strony południowej domu, w ogrodzie znajduje się taras pokryty piaskowcem, nad tarasem zbudowana jest drewniana pergola obrośniętą wisterią, która latem stanowi naturalną osłonę przed słońcem. Na taras wchodzi się z salonu.
W ogrodzie znajduje się mała architektura ogrodowa - mur ozdobny zbudowany z klinkieru, z podestem pokrytym piaskowcem. Jest to przyjemne miejsce odpoczynku w ogrodzie.
W ogrodzie zainstalowano rozprowadzenie wody do nawadniania. Woda do podlewania ogrodu pobierana jest z własnego ujęcia wody i nie wchodzi w opłaty za wodę, a jedynie w opłaty za energię elektryczną (pompa wodna).
W kotłowni został zainstalowany system uzdatniania wody - filtry i zmiękczacz wody. W kuchni znajdują się dodatkowe filtry wody pitnej.
Do domu doprowadzony jest Internet od Orange.
Lokalizacja: sąsiedztwo Rezerwatu Przyrody Skarpa Oborska i Chojnowskiego Parku Krajobrazowego, 7 minut autem do CH Stara Papiernia, 15 minut do Parku Zdrojowego z tężnią solankową, liczne sklepy i restauracje w okolicy.
Miejsce idealne dla osób pragnących kontaktu z naturą i ciszy.

--Treść niniejszego ogłoszenia nie stanowi oferty handlowej w rozumieniu Kodeksu Cywilnego--

Skontaktuj się z agentem :
Monika Mazur

Telefon : 609500791

monikamazur@axton.pl


Lokalizacja: